15 Sähkökaaviot – Taurus Inverter Pro
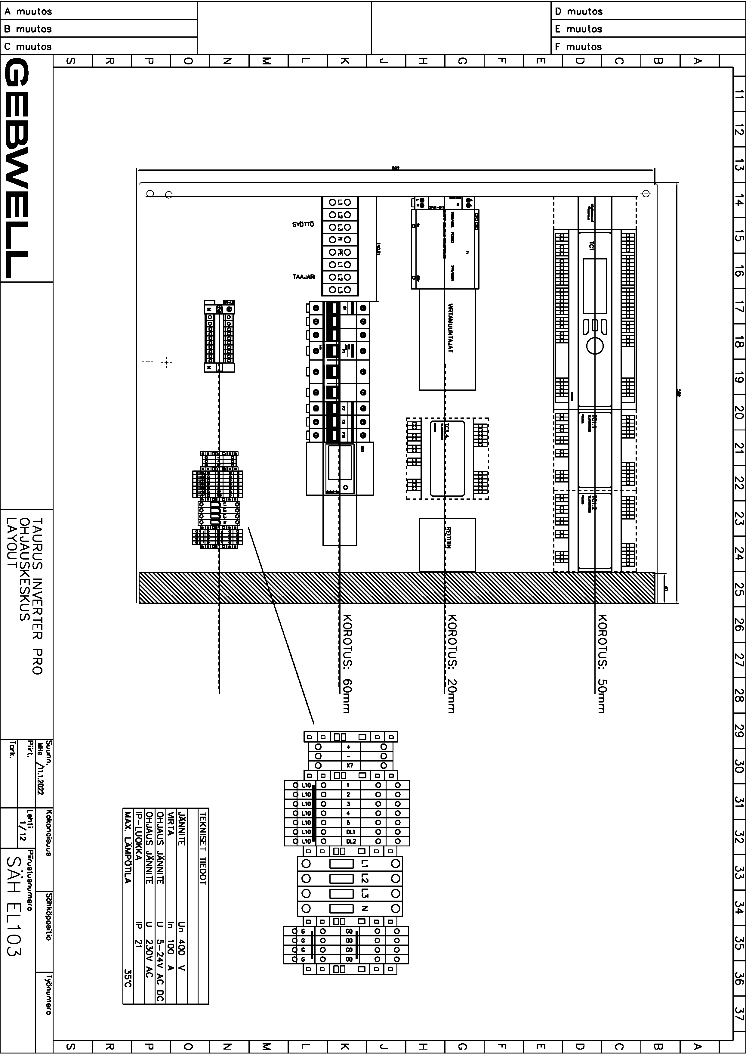
Ohjauskeskus, layout
Ohjauskeskus, piirikaavio (3 sivua)
Modbus, sisäinen väylä
Säädin, pisteluettelo
Laajennusmoduuli TC1.1, sisäinen laajennus
Laajennusmoduuli TC1.2, lämmitys
Laajennusmoduuli TC1.4, kaskadi
Lisävaruste, jäähdytyksen säätöryhmä
Lisävaruste, käyttöveden säätöryhmä
Ulkoiset väyläliitännät











