6.1 Lämpöpumpun putkilähdöt
Kuva 1. Putkilähdöt, Taurus Inverter Pro
| 1 | Varoventtiilin ulospuhallusputki | WO1 | Lämpöjohto meno/ulos, 2” uk |
| BO1 | Keruupiiri meno/ulos, 2” uk | W12 | Lämpöjohto paluu/sisään, 2” uk |
| B12 | Keruupiiri paluu/sisään, 2” uk |
Kuva 2. Putkilähdöt, Taurus 80/110 EVI
| BO1 | Keruupiiri meno/ulos, G2” uk | W12 | Lämpöjohto paluu/sisään, G2” uk |
| B12 | Keruupiiri paluu/sisään, G2” uk | SO1 | Tulistus meno/ulos, G2” uk |
| WO1 | Lämpöjohto meno/ulos, G2” uk | S12 | Tulistus paluu/sisään, G2” uk |
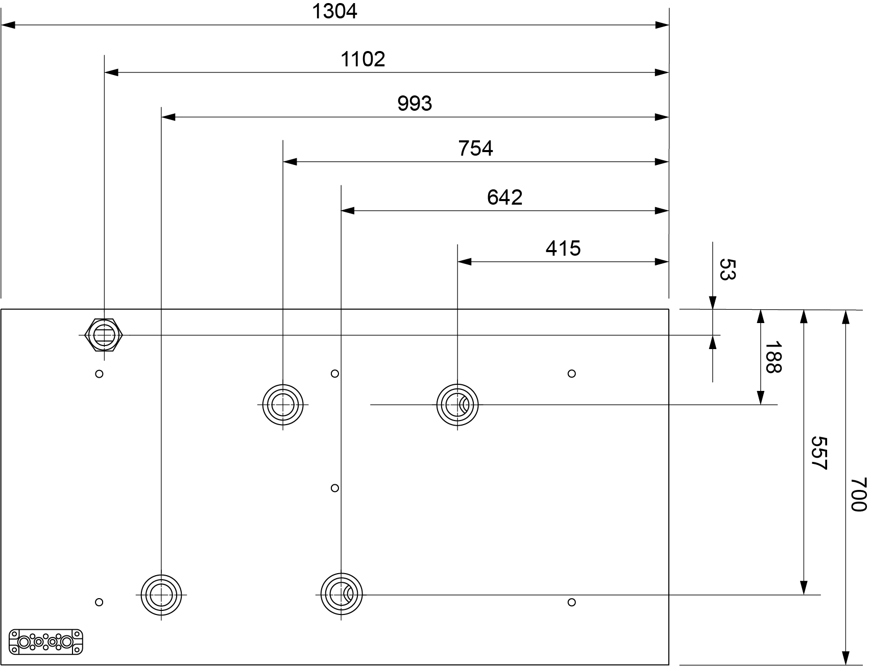
Putkiyhteiden asennusmitat
Kuva 3. Taurus Inverter Pro


Kuva 4. Taurus 80/110 EVI

